В центре Бреста построят новый дом. За квартиры пока можно не платить
Застройщик «Полесьежилстрой» меньше чем за год построит в центре Бреста монолитный дом. Квартиры получат геометрически правильные комнаты с панорамными окнами, раздельные санузлы и застекленные лоджии. На «двушки» действует непривычная для страны беспроцентная рассрочка на 24 месяца без первоначального взноса.

Каркасно-монолитный дом возведут на улице Гоголя, 96 прямо у проспекта Машерова. Высотка «вырастет» на месте бывшего военного городка Интендантский рядом с другими домами «Полесского» комплекса. В минутах ходьбы – пешеходная улица Советская и набережная Бреста.
Строители нацелились на 18 этажей, над которыми сделают «теплый чердак». Стены выложат из газосиликатных блоков с повышенной теплоизоляцией и шумозащитой. Фасад утепленный с нанесением декоративной штукатурки, цветовое решение выдержано в современной стилистике.

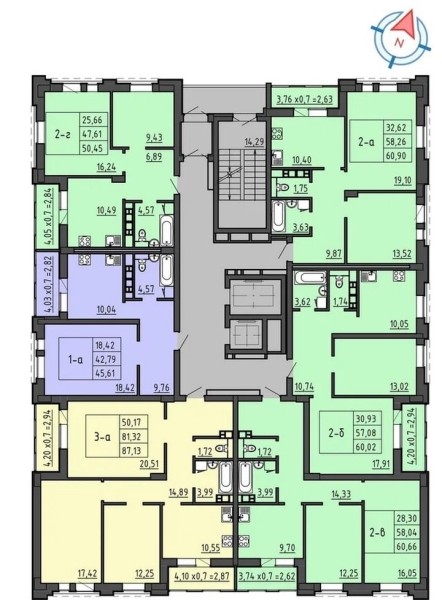
Основными в доме будут «двушки» площадью в 60 «квадратов». Внутри – геометрически выверенные комнаты, много света и раздельный санузел. Квартиры явно спроектированы для тех, кто не принимает свободные планировки: посредине – спальня, слева – кухня с ванной и туалетом, а справа – гостиная, к которой будет примыкать застеклённая лоджия.
Комнаты покажут мир через панорамные окна, с которых обещают «восхитительные рассветы с видом на брестскую акваторию». На последнем этаже квартиры повешенной комфортности – с 3-метровыми потолками.
Цены на квартиры – ниже средних для центра города. «Квадрат» стоит меньше 1100 долларов в эквиваленте. Первым покупателям «двушек» доступна бесплатная рассрочка на 24 месяца. Что интересно, по ней нет первоначального взноса, хотя обычно просят внести не менее 30% от суммы. Отсутствуют и переплаты – по сути, можно равномерно расплачиваться за жилье в течение двух лет.

«Новый дом будет каркасно-монолитным – с шикарным фасадом и максимально продуманными планировками. Прежде всего, мы думали о молодых семьях, для которых это будет первое жилье. Но также рассчитываем на интерес к квартирам со стороны холостяков и людей постарше. Квартиры спроектированы для тех, кто предпочитает четкое зонирование и комфорт: комнаты правильных размеров, раздельные санузлы, большая кухня. Таковы запросы людей. И при этом мы решили им помочь, освободив от необходимости влезать в кредиты. На этапе запуска доступна рассрочка без переплат и первоначального взноса, при этом фиксируется стоимость «квадрата» в рублях. Многие семьи смогут на этом выиграть и без долговых рисков обрести собственное жилье», – отмечают в «Полесьежилстрой».

Подъезды в новом доме будут просторными – с фойе и колясочной комнатой. Одно из помещений выделят под умывальную. В отличие от минских проектов, в ней можно будет и ребенка умыть или переодеть, и собаке лапы помыть. Между этажами пустят скоростные и бесшумные лифты Otis.
Рядом с домом установят детскую площадку в мультяшном стиле с атравматичным покрытием. Появится и крытая велопарковка.
Каркасно-монолитную новостройку в центре Бреста построят к маю 2023 года. А через пару месяцев введут в строй и кирпичный дом по соседству. Застройщик поставил перед собой короткие сроки, чтобы владельцы квартир смогли заселиться до следующей осени.
Если интересно, звоните напрямую застройщику: +375-33-30-30-600.


Источник: onlinebrest.by